Wir freuen uns auf Ihre Kontaktaufnahme

Top-Grundstück in Neuss-Allerheiligen – 2.142 m² mit Potenzial!

8 Fotos und Anhänge ansehen
Claudia Evertz Immobilien
Anton-Holtz-Str. 27, 40667 Meerbusch

Ansicht

Hof mit Stallungen

Hof mit Stallungen

Gartenansicht

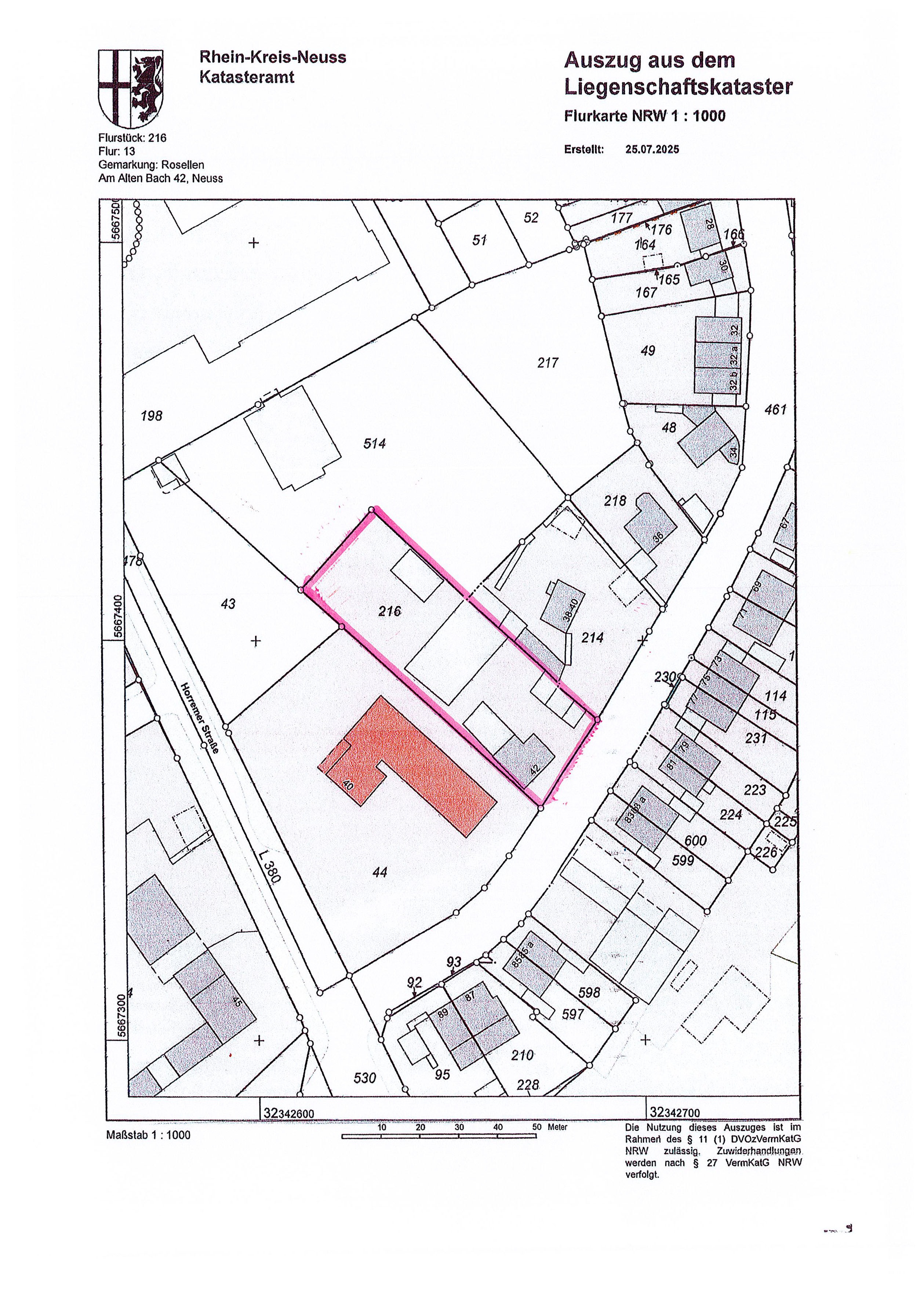
Flurkarte_gez.

Variante 1

Variante 2

Variante 3

Top-Grundstück in Neuss-Allerheiligen – 2.142 m² mit Potenzial!

Eckdaten

  • Art Baugrund für Ein- / Zweifamilienhäuser
  • Lage 41470 Neuss
  • Kaufpreis 1.300.000,00
  • Grundstücksfront ca. 26 m
  • Grundstück ca. 2.142
  • Bezugstermin sofort
  • Bebaubar nach Nachbarbebauung
  • Erschließung Voll erschlossen
  • Fahrzeit Hauptbahnhof 24 min
  • Fahrzeit nächster Flughafen 30 min
  • Immobilien-ID 8044
  • Provision 4,76%

Immobilie

Zum Verkauf steht ein außergewöhnlich großes und breit geschnittenes Grundstück in attraktiver Lage von Neuss-Allerheiligen. Mit einer Gesamtfläche von ca. 2.142 m² und einer Straßenfront von ca. 26 Metern bietet dieses Areal vielfältige Möglichkeiten für Bauträger, Investoren oder private Bauherren.

Aktuell ist das Grundstück mit einem älteren Wohnhaus und diversen Gebäuden bebaut. Eine Bebauung kann gemäß § 34 BauGB erfolgen, d.h. unter Einhaltung der Umgebungsbebauung.

Das Grundstück überzeugt nicht nur durch seine Größe und Breite, sondern auch durch die vielfältigen Bebauungsmöglichkeiten. Nach Rückbau des Bestandes eröffnet sich für Bauträger ein attraktives Entwicklungspotenzial. Lt. Bauamt ist eine zweireihige Reihenhausbebauung denkbar, auch in zweiter Reihe. Je nach Variante sind dabei ca. 6 bis 7 Wohneinheiten realisierbar. (Varianten siehe Fotos)
Darüber hinaus besteht die Option einer Zeilenbebauung, also Reihenhäuser in Längsrichtung auf dem Grundstück – eine spannende Möglichkeit, die Fläche optimal zu nutzen.

Variante 1: 6 Reihenhäuser, davon 3 in zweiter Reihe, ca. 1346m² BGF, ca. 957 m² Wfl.

Variante 2: 6 Reihenhäuser in Längsrichtung, ca. 1084m² BGF, ca. 786 m² Wfl.

Variante 3: 7 Reihenhäuser, davon 4 in zweiter Reihe, ca. 1535m² BGF, ca. 1198 m² Wfl., hier ist eine Abstandsbaulast notwendig

Lage

Das Grundstück befindet sich in ruhiger, familienfreundlicher Wohnlage in Neuss-Allerheiligen, einem der beliebtesten Ortsteile mit dörflichem Charme und gleichzeitig guter Anbindung an die Städte Neuss, Düsseldorf und Köln.

Kindergarten, Schulen und Einkaufsmöglichkeiten (Rewe, Aldi, etc.) in unmittelbarer Nähe

Busverbindung und Autobahnanschluss (A57, A46) schnell erreichbar

Naherholungsgebiete, Felder und Waldgebiete fußläufig erreichbar

Bebaubarkeit

Bebauung richtet sich nach § 34 BauGB – keine qualifizierten B-Plan-Vorgaben
Das Grundstück kann bis zu einer Tiefe von ca. 48 m bebaut werden.
GRZ: 0,6
Alle Angaben erfolgen ohne Gewähr und müssen vom Käufer baurechtlich geprüft werden.

Erschließung

Das Grundstück ist voll erschlossen.

Sonstiges

Alle Angaben sind Angaben des Verkäufers. Hierfür übernehmen wir keine Gewähr.

Weitere Informationen

Wie können wir Ihnen behilflich sein?

Herzlichen Dank für Ihre Anfrage.

Wir werden diese so schnell wie möglich bearbeiten.

Wie können wir Ihnen behilflich sein?
* Pflichtfeld
Nach oben
Kostenlose Beratung